Pasivní architektura

Návrhy a realizace nízkoenergetických a pasivních domů, interiér a design

Bahal partner
+420 734 113 105 info[at]pasivniarchitektura[dot]cz

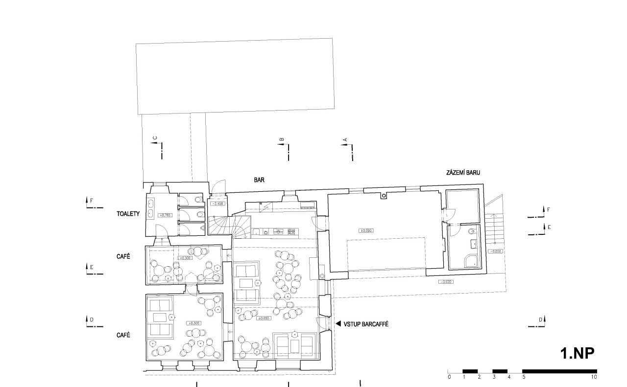
Restaurace Sauna, Letohrad

účast: STUDIE 2009; investor: soukromá osoba charakteristika: interiér restaurace a wellness prostor (masáže, bazén,...) investiční náklady: - kapacita: - spolupráce: Ing.arch. David Hlouch